| 當前位置:首頁--排污泵系列產品--NL型污水泥漿泵 |
 |
| 一、NL型污水泥漿泵的概述: |
NL型污水泥漿泵是排污泵的一種,主要部件有蝸殼、葉輪、泵座、泵殼、支撐筒、電機座、電動機等組成。蝸殼、泵座、電機座、葉輪螺母是生鐵鑄造、耐腐性、耐腐蝕性較好,加工工藝方便。
葉輪為三片單園弦彎葉,選用半封閉葉輪,并采用可鍛鑄鐵、所以強度高,耐腐蝕;加工方便,通過性好,效率高。
為了減輕重量和減少車削量、泵軸是優質碳素鋼冷拉園鋼制造。
泵座中裝有四只骨架油封和軸套,防止軸磨損,延長軸的使用壽命。
NL型污水泥漿泵可垂直或傾斜使用,占地面積小,蝸殼需埋在工作介質中工作,容易啟動,不需弓I水,旋轉方向應從電機尾部看是順時針方向工作。
總機長度備有各種規格,以便使用單位根據用途因地制宜地選用。 |
二、NL型污水泥漿泵型號說明: |
 |
| 三、NL型污水泥漿泵用途: |
1、NL型污水泥漿泵使用于礦山、造紙、印染、環保、石墨、云母、黃金、陶瓷、煉油、石油、化工、農場、鹽場、碘場、染化、釀酒、食品、化肥、焦化選廠、建筑、大理石廠、金礦、泥漿、流沙、泥塘、污塘、污濁液送吸濃漿稠液、裝料及懸浮物質的污水作業,也可作煤礦排水及含有泥塊的流體。
2、若與高壓水泵,水槍配合,組成水力機械化土方工程機組,就可用作于土地平整,河道與池塘的疏浚、鑿開等小型水利工程的挖方與輸方,以及城市的防空工程,以下工程。
3、養魚用作帶水清塘、魚池增氧等。 |
四、NL型污水泥漿泵的性能參數表: |
| 型號 |
轉速
r/min |
流量
m3/h |
揚程
m |
效率
% |
電機功率
KW |
立式泵全長
mm |
機泵重量
kg |
NL50-8
NL50A-8 |
1450 |
20-30 |
8-9 |
42 |
1.5 |
1310 |
63 |
NL50-12
NL50A-12 |
1450 |
25-38 |
12-14 |
41 |
3 |
1310 |
80 |
NL76-9
NL76A-9 |
1450 |
50-70 |
9-10 |
42 |
3 |
1350 |
90 |
NL65-16
NL65A-16 |
1450 |
50-60 |
15-18 |
42 |
5.5 |
1430 |
152 |
NL80-12
NL80A-12 |
1450 |
80-120 |
11-13 |
56 |
7.5 |
1430 |
145 |
NL100-16
NL100A-16 |
1450 |
80-100 |
15-17 |
61 |
15 |
1510 |
270 |
NL150-12
NL150A-12 |
1450 |
100-150 |
11-13 |
66 |
18.5 |
1690 |
350 |
NL150-16
NL150A-16 |
1450 |
120-180 |
15-20 |
68 |
22 |
1690 |
370 |
|
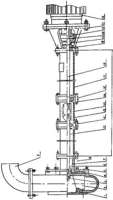
五、NL型污水泥漿泵結構說明: |
 |
| 序號 |
型式/另件名稱 |
NL,NLF,NW |
| 編號 |
數量 |
備注 |
| 1 |
網罩 |
1 |
1 |
|
| 2 |
葉輪螺母 |
2 |
1 |
|
| 3 |
葉輪 |
3 |
1 |
|
| 4 |
泵殼 |
4 |
1 |
|
| 5 |
泵座 |
5 |
1 |
|
| 6 |
0型圈 |
6 |
1 |
改進型用機械密封 |
| 7 |
油封 |
7 |
4 |
改進型用機械密封 |
| 8 |
軸套 |
8 |
1 |
改進型用機械密封 |
| 9 |
出水彎頭 |
9 |
1 |
|
| 10 |
泵軸 |
10 |
1 |
|
| 11 |
軸承 |
11 |
2 |
|
| 12 |
從動聯軸器 |
12 |
1 |
|
| 13 |
主動聯軸器 |
13 |
1 |
|
| 14 |
聯接筒 |
14 |
1 |
|
| 15 |
軸承座 |
15 |
2 |
|
| 16 |
聯接軸 |
16 |
1 |
|
| 17 |
支撐筒 |
17 |
2 |
|
| 18 |
軸承蓋 |
18 |
1 |
|
| 19 |
從動聯軸器 |
19 |
1 |
|
| 20 |
電機座 |
20 |
1 |
|
| 21 |
電機座C |
21 |
1 |
帶固定板用 |
| 22 |
主動聯軸器 |
22 |
1 |
|
| 23 |
電動機 |
23 |
1 |
|
| 24 |
彈性塊 |
24 |
1 |
|
|
|
| 六、NL型污水泥漿泵的泵長說明: |
| 型號長度 |
NL150-12NL150A-12NL150-16NL150A-16 |
NL50-8NL50A-8NL50-12NL50A-12NL76-9NL76A-9 |
NL65-16NL165A-16NL80-12NL80A-12 |
NL100-16NL100A-16 |
| 泵長度L(毫米) |
650 |
470 |
710 |
710 |
| 1300 |
1120 |
1190 |
1190 |
| |
1620 |
1910 |
1940 |
| / |
2120 |
2410 |
2440 |
| / |
2620 |
3130 |
3190 |
| / |
3120 |
3630 |
3690 |
| / |
3620 |
4350 |
4440 |
| / |
4120 |
4850 |
4940 |
| / |
4620 |
5570 |
5690 |
| / |
5120 |
6070 |
6190 |
| / |
3620 |
/ |
/ |
|
七、NL型污水泥漿泵安裝說明圖: |
 |
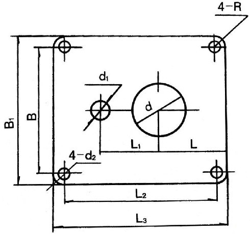
| 八、NL型污水泥漿泵的安裝尺寸圖及安裝尺寸: |
 |
| 型號/代號 |
L |
L1 |
L2 |
L3 |
B |
B1 |
d |
d1 |
4-d2 |
4-R |
δ |
| NL25-10 |
180 |
120 |
350 |
400 |
280 |
330 |
72 |
40 |
13 |
25 |
6 |
| NL50-8 |
255 |
230 |
590 |
650 |
490 |
550 |
215 |
70 |
18 |
30 |
8 |
NL80-9
NL50-12
NL76-9 |
255 |
230 |
590 |
650 |
490 |
550 |
258 |
80
70
70 |
18 |
30 |
10 |
NL65-16
NL80-12
NL50-24 |
255 |
285 |
690 |
750 |
590 |
650 |
175 |
70
110
70 |
18 |
30 |
12 |
NL100-16
NL100A-16 |
380 |
350 |
920 |
1000 |
820 |
900 |
226 |
115
70 |
18 |
40 |
14 |
|
九、NL型污水泥漿泵的拆卸與安裝: |
(一)、NL型污水泥漿泵拆卸
1、拆卸電鈄或面定板,出水管。
2、拆卸蝸殼和葉輪蝶每,輕擴葉輪背面,拆鍵葉輪。
3、拆凼從動半聯軸器,再拆卸鍵、然后把電機座拆卸,與支撐筒分離。
4、拆卸泵座與支撐筒螺栓,使其分幵。
5、從軸上拆卸軸套與軸承。
(二)、NL型污水泥漿泵安裝
1、對所有零件進行檢査是否有缺損,所有紙墊兩面都要涂一層簿黃油,在軸承內加上三分之二黃油。
2、骨架油封必須注滿黃油后放入泵座,再裝上軸承。
3、軸套內裝上0型密封圈后涂上黃油。
4、把承裝在電機座上,放上紙墊,擋油圈,裝上軸與支撐筒用螺釘固定。
5、放上紙墊,裝上軸承、軸套、鍵、泵座和葉輪,旋緊葉輪螺母后用手旋轉葉輪,轉動靈活即可。
6、放上紙墊裝上泵殼,用螺釘固定并裝上濾網。然后再用手拔動葉輪,轉動靈活即可。
7、泵軸上裝上鍵和從動聯軸器,在電機軸上裝上鍵與主動聯軸器,然后將電機與電機座螺栓固定。裝好后要求與主動聯軸器與從動聯軸器之間軸向間隙應為1~1.5毫米。 |
十、NL型污水泥漿泵的故障產生原因及排除方法: |
| 流里不足 |
1、吸口被阻,泥潭糞坑欠深,泵吸不到泥糞。
2、輸泥管被阻。
3、電機轉速低于額定轉速。
4、葉輪打壞。
5、揚程過高,輸送過遠。
6、旅向相反。
7、泄漏較大。
8、葉輪上繞有雜物。
9、介質太稠或供應量不路。 |
1、排除吸口阻檔物,移動泵,使蝸殼全部埋入泥漿糞水中。
2、檢査管道,取出阻檔物。
3、提高電機轉速。
4、調換葉輪。
5、減少揚程,縮短輸送距離。
6、改換電機旋向。
7、檢查泄漏原因,并更換引起泄漏的另件。
8、排除雜物。
9、沖稀介質,增大供應量。 |
| 噪聲與震動 |
1、葉輪與蝸殼磨擦。
2、軸承已損壞或少油。
3、泵軸與電機不同心,軸彎曲。4、螺帽有松動。
5、蝸殼中有雜物。
6、工作液中有硬物。
7、吸口有空氣滲入。
8、汲送液體溫度過高。 |
1、檢查泵的裝配并調整之。
2、調換軸承或加油。
3、調同心,校正軸。
4、擰緊螺帽。
5、排除雜物。
6、控制進泵雜物尺度,加密濾網。
7、深埋蝸殼。
8、降低液體溫度。 |
|
其他排污泵系列產品推薦: |
|
您可能感興趣的潛水攪拌器系列產品: |
|